JuNiMo Architekten GmbH

Schulzentrum Diez Schulzentrum Diez
Schulzentrum Diez

Phorms Schule Steinbach

Kategorie: Schulbau
Bauherr: Kreisverwaltung des Rhein-Lahn-Kreises
Zeitraum: 2010 - 2012
Aufgabe:  
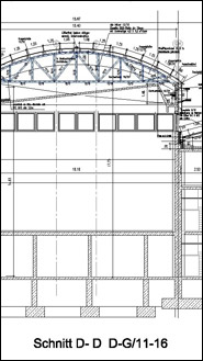
Energetische Sanierung des Schulzentrums Diez mit Anbau und Aufstockung der Orientierungsstufe
(Leistungsphase 1-9 HOAI)
Beschreibung:

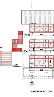
Aufstockung und Anbau eines bestehenden Schulgebäudes.

Sanierung der Dächer mit entsprechenden Isolierungsmaßnahmen der Realschule, Gymnasium und der Orientierungsstufe.

Einbau von 2 Aufzügen in Realschule und Gymnasium, sowie Herstellung einer behindertengerechten Rampe im Außenbereich zur Herstellung der Barrierefreiheit im Schulzentrum.

Der Brandschutz wurde auf Grundlage eines neu erstellten Brandschutzkonzeptes ergänzt und den gesetzlichen Vorschriften angepasst.

Die Fachräume in der Realschule und Gymnasium wurden nach den neusten Erkenntnissen umgebaut und neu eingerichtet.

Pfeil zurück zur Projektübersichtseite